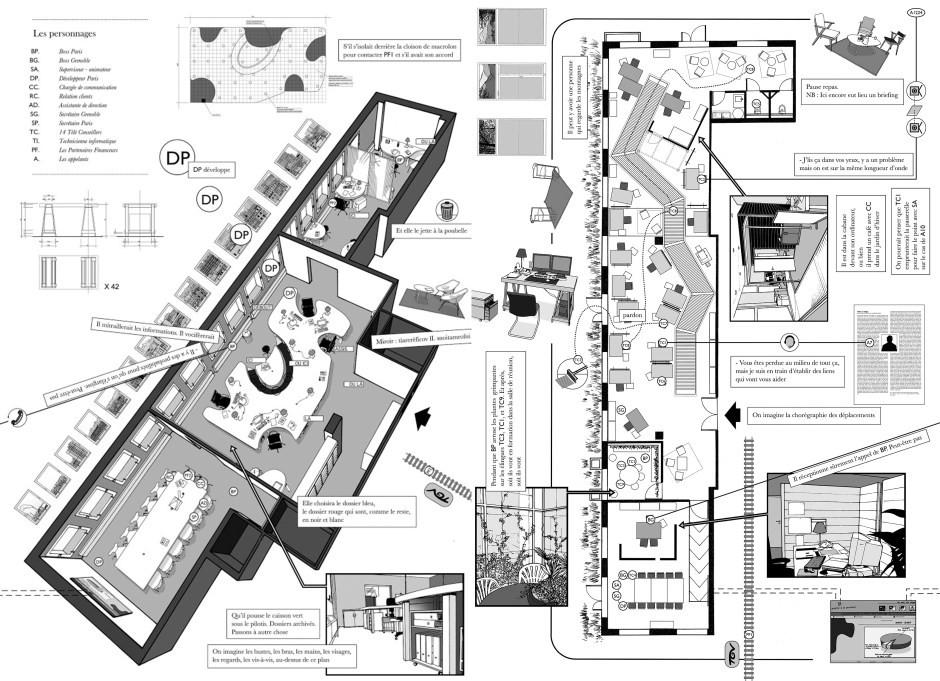
WOS à Domplus, Centrale d’écoute/ Call Center, Service à la Personne
DOMPLUS : 3 ESPACES/3 SCÉNOGRAPHIES
DOMPLUS : PUBLICATIONS :
Scénographie, L’ouvrage et l’oeuvre – Théâtre Public – 177 – Work on Stage/ C. Dehove, S. Dehove, J.B. Verguin sous la direction de Chantal Guinebault – Szlamowicz
Stage-Bridges, C. Dehove, S. Dehove, J.B. Verguin, REVUE OLLAVE n° 26, Apt, 2005


